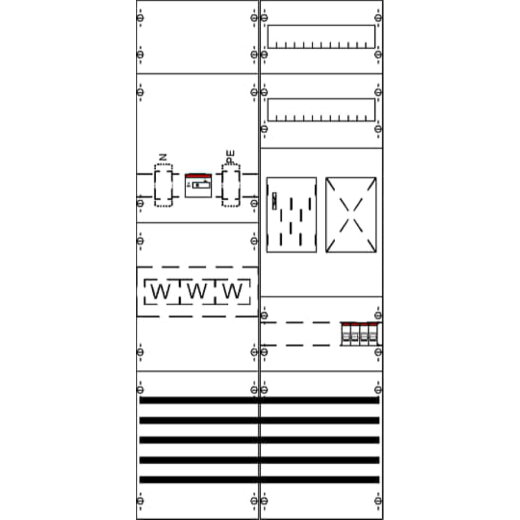
Mess- und Wandlerfeld, Komplettfeld, mit BKE-I, für den Innenbereich, geltende Normen: DIN EN 61439-1, VDE 0660-600-1, DIN EN 61439-2, VDE 0660-600-2, DIN EN 61439-3, VDE 0660-600-3, Bemessungsstrom In 100 A, in RAL 7035, Abmessungen in mm (H x B x T): 1050 x 500 x 160, Netzsystem TN-S, 5-polig, Stecktechnik, Anzahl Zählerplätze Einzeltarif 1, Anzahl SG-Plätze 1, Anzahl Wandlerzählerplatz 1, verdrahtet nach den Vorgaben des NB, Spannungspfad 4 LS-Schalter B10/25kA Überspannungskategorie 3, Lastbereich: Sammelschienensystem Cu-Schienen 12 x 5 mm 5-polig, Trennstelle vor dem Wandler für SH-Schalter mit ABB S700, Wandlerbereich Montageplatte für Einzelwandler mit Fußbefestigung zum Durchführen der Leitung, Verrechnungswandler 100/5 A, K 0,5 S; 5VA (Beistellung NB), Trennstelle nach dem Wandler Lastschalter 125 A / 3-polig (10-70qmm), Primärverdrahtung 35 qmm, N+PE 2 Anschlüsse N+PE 95qmm, Hinweis: E DIN VDE 0603-2-2, Rasteinheit 7 RE, Bauhöhe 3, Feldbreite 2, Platzeinheiten 168, Abdeckungen aus Kunststoff, plombierbarer Schnellverschluss, RAL 7035