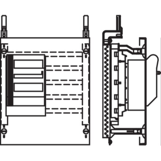
Innenausbausystem, Kombi-Sets, montiert auf EDF-Profil, für Sammelschienensystem mit Betriebsmittel, Rasteinheit 2 RE = 300 mm, Feldbreite 1 = 250 mm, 24 Platzeinheiten, bestückt mit 1 NH-Sicherungslasttrennschalter NH00, Betriebsmittel Fabrikat: ABB, ZH414, mit Sammelschienensystem 3-polig, Ausrichtung Sammelschienen: horizontal, mit Sammelschienenhalter ZB5, Sammelschienenmittenabstand: 40 mm, mit 3 Cu-Schienen, Bemessungsstrom In max. 360 A, Abdeckungen aus Kunststoff, 90 Grad Druck-Drehverschluss, RAL 7035, einsetzbar ab einer Schranktiefe von 200 mm, Kombi-Sets werden oben oder unten am Verteilerfeld eingesteckt und auf der anderen Seite am Schrank befestigt. Die EDF-Profilschienen und Feldverbinder sind im Lieferumfang enthalten.